Das neue AVENTURA 37 Design schließt die Lücke zwischen der AVENTURA 34 und AVENTURA 44.
Mit der im September 2021 präsentierten Aventura 37 stellt die Werft ein Boot von nur 10,90 Meter Rumpflänge vor.
Die Konstruktion kommt aus dem Lasta Design Studio und zeigt voluminöse Rumpfformen die sich über markante Kimmkanten zur Wasserlinie deutlich verjüngen, dazu auffällig große Fenster im Freibord. Die Position vom Rigg ist konventionell vor dem Kajütaufbau. Damit ist die überlappende Genua mit Holepunkten auf dem Kajütdach der Standard.
Die Aventura 37 verfügt über eine ausgedehnte Sonnenlounge auf der zweiten Etage zeigt, eine Liege- und Sitzfläche auf der Flybridge. Ein zweiter Bereich zum Erholen und Sonnenbaden ist auf dem Vorschiff vorgesehen, wo mit zusätzlichen Polstern ebenfalls eine schöne und große Liegefläche eingerichtet werden kann. Der Steuerstand befindet sich bei diesem neuen Multihull von Aventura auf der Backbordseite, von wo sich die Aventura 37 ideal einhand bedienen lässt.
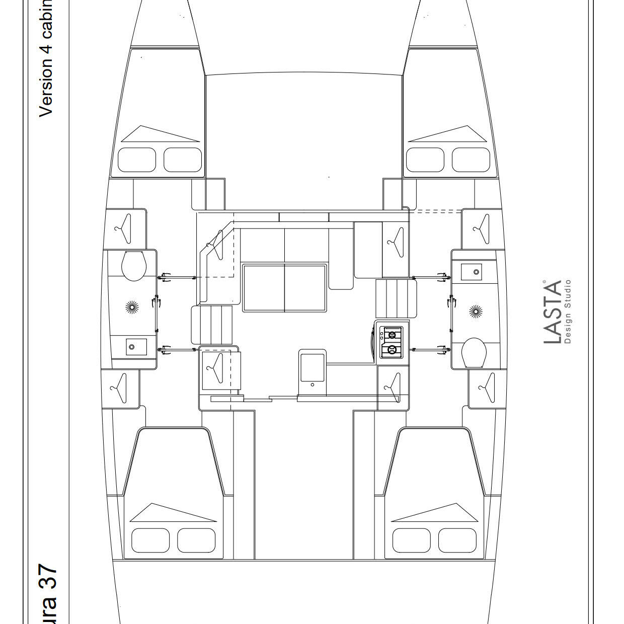
Überraschendes gibt die Werft auch für den Ausbau unter Deck bekannt. Varianten mit drei oder vier Kabinen stehen hier zu Auswahl, und für den Einsatz im Chartermarkt werden sogar bis zu vier separierte Nasszellen möglich sein. In dieser Bootsgröße sind diese Vielfalt bei den Layouts und das Angebot von vier Kabinen mit jeweils eigenem WC-Räumen derzeit noch einzigartig.
Auf der Cannes-Boatshow wurde im September 2021 die erste Aventura 37 im Wasser präsentiert.
Layouts

| Länge über Alles | 10,90 m |
| Breite | 5,94 m |
| Tiefgang | 1,20 m |
| Durchfahrtshöhe | 20,00 m |
| Leergewicht | 7,9 t |
| Großsegel | 58 m2 |
| Vorsegel | 36 m2 |
| Frischwassertank | 2 x 250 l |
| Kraftstofftank | 2 x 250 l |
| Maschine | 2 x 20 / 2 x 30 PS |
| Konstrukteur | LASTA Design |
Alle AVENTURA-Modelle
© Fotos & Werft:
aventura-catamarans.com






